26350 Coventry LN, Bonita Springs, FL 34135
- $399,000
- $399,000
Description
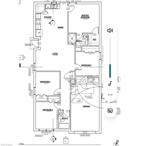
Discover a rare opportunity to own a modern, affordable, new construction home right in the highly desirable heart of Bonita Springs. This charming bungalow is thoughtfully designed for comfortable and functional living, offering a bright, welcoming open layout. The residence features four spacious bedrooms and two full bathrooms, making it an ideal choice for growing families or anyone seeking quality, modern amenities, and exceptional value.
With an estimated completion scheduled for late Summer or early Fall 2026, you still have a critical opportunity to personalize this home. Buyers can work directly with the builder to select key options, including flooring, countertops, and interior colors, truly making this house your own before you move in.
Take advantage of the introductory pre-construction pricing! Prices are scheduled to increase once construction is complete and the home is moved to market rate. Don’t miss this chance to lock in value and customize your brand new Southwest Florida home.
Details
Updated on January 20, 2026 at 8:02 pm-
Property ID 225082547
-
Price $399,000
-
Property Size 1387 Sqft
-
Land Area 0.161 Acres
-
Bedrooms 4
-
Bathrooms 2
-
Garage 1
-
Garage Size x x
-
Year Built 2026
-
Property Type Single Family Residence, Residential
Additional details
-
Roof Shingle
-
Cooling Central Electric
-
Heating Central Electric
-
Flooring Vinyl
-
County Lee
-
Property Type Residential
-
Parking Driveway Paved,Attached
-
Waterfront None
-
Architectural Style Ranch,Single Family
Mortgage Calculator
-
Down Payment
-
Loan Amount
-
Monthly Mortgage Payment
-
Property Tax
-
Home Insurance
-
PMI
-
Monthly HOA Fees
Similar Listings
2075 Gordon E DR, Naples, FL 34102
2075 Gordon E DR, Naples, FL 34102Residential - Single Family Residence
15280 Floresta LN, Fort Myers, FL 33908
15280 Floresta LN, Fort Myers, FL 33908Residential - Single Family Residence