1905 NE 17th AVE, Cape Coral, FL 33909
- $315,000
Description
Welcome to this beautifully maintained Cape Coral home located at 1905 NE 17th Ave, offering comfort, convenience, and a prime NE location. This property features a bright and open layout with spacious living areas, a well-appointed kitchen, and generously sized bedrooms, perfect for both everyday living and entertaining.
Situated in a growing neighborhood surrounded by new development, this home provides quick access to shopping, dining, schools, and major roadways. The oversized lot offers plenty of outdoor space for relaxing, gardening, or future enhancements such as a pool, patio extension, or additional landscaping.
With no HOA restrictions, this property is ideal for first-time buyers, seasonal residents, or investors seeking a clean, move-in-ready home in a desirable Cape Coral location.
Enjoy Florida living with room to grow, schedule your showing today!
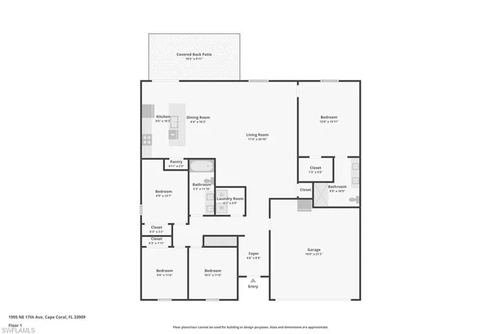
Details
Updated on April 10, 2026 at 3:38 pm-
Property ID 225083075
-
Price $315,000
-
Property Size 2276 Sqft
-
Land Area 0.23 Acres
-
Bedrooms 4
-
Rooms 9
-
Bathrooms 2
-
Garages 2
-
Garage Size x x
-
Year Built 2023
-
Property Type Single Family Residence, Residential
-
Property Status Active
Additional details
-
Roof Shingle
-
Sewer Septic Tank
-
Cooling Central Electric
-
Heating Central Electric
-
County Lee
-
Property Type Residential
-
Parking Attached
-
Waterfront None
-
Architectural Style Ranch,Single Family
Features
Mortgage Calculator
-
Down Payment
-
Loan Amount
-
Monthly Mortgage Payment
-
Property Tax
-
Home Insurance
-
PMI
-
Monthly HOA Fees
Similar Listings
3660 Olde Cottage LN, Bonita Springs, FL 34134
3660 Olde Cottage LN, Bonita Springs, FL 34134Residential - Single Family Residence
121 JAMAICA DR, Naples, FL 34113
121 JAMAICA DR, Naples, FL 34113Residential - Single Family Residence