17884 Wayside BEND, Punta Gorda, FL 33982
- $289,000
Description
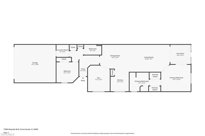
MOTIVATED SELLERS!!! Welcome to this beautifully appointed villa located in the heart of Babcock Ranch — America’s first solar-powered town and one of Southwest Florida’s most innovative and sought-after communities. This stylish home offers approximately 1,600 sq ft of thoughtfully designed living space in a vibrant, amenity-rich neighborhood. Featuring 2 bedrooms, 2 bathrooms, and a bonus room that is great for a home office or hobby room! The well appointed kitchen has stainless steel appliances, granite countertops, plenty of cabinets for storage, and a walk in pantry. The living room leads to your screened in paver lanai, overlooking one of the beautiful lakes this community offers! The spacious primary suite offers a large bedroom, two closets, private lanai access, and leads to your ensuite bathroom. The beautiful bathroom has dual sinks, a walk in shower, and a separate soaking tub. The guest bedroom and bath are perfect for visitors! Additional features include: hurricane shutters, gas tankless water heater, interior laundry room with a full size washer & dryer, a 2 car garage, plus so much more! The HOA fee includes lawn care, landscaping, roof, high speed internet, exterior painting, and access to premium amenities! Nestled within Trails Edge in Babcock Ranch, this home places you just minutes from Founders Square, where dining, shopping, and community events create a vibrant small-town atmosphere. Residents here enjoy access to a broad range of resort-style amenities including community pools, parks, walking and biking trails, fitness centers, golf and pickleball facilities, dog parks, kayak launches, and neighborhood events year-round. Take your golf cart around and explore! This community is in close proximity to schools, parks, wellness facilities, and a growing selection of retail and dining options, plus easy access to major roadways for convenient commuting to Charlotte & Lee counties, plus downtown Fort Myers! Enjoy the environmental and economic benefits of living in an eco-friendly town built around sustainability and renewable energy.
Details
Updated on April 20, 2026 at 12:05 pm-
Property ID 2026005600
-
Price $289,000
-
Property Size 2243 Sqft
-
Bedrooms 2
-
Rooms 8
-
Bathrooms 2
-
Garages 2
-
Garage Size x x
-
Year Built 2018
-
Property Type Villa Attached, Residential
-
Property Status Active
Additional details
-
Association Fee 3672
-
Roof Shingle
-
Cooling Ceiling Fan(s),Central Electric
-
Heating Central Electric,Natural Gas
-
Flooring Carpet,Tile
-
County Charlotte
-
Property Type Residential
-
Pool Community
-
Parking Attached
-
Community Features Clubhouse,Park,Pool,Fitness Center,Restaurant,Sidewalks,Street Lights,Tennis Court(s),Gated
-
Waterfront Lake
-
Architectural Style Ranch,Villa Attached
Mortgage Calculator
-
Down Payment
-
Loan Amount
-
Monthly Mortgage Payment
-
Property Tax
-
Home Insurance
-
PMI
-
Monthly HOA Fees
Similar Listings
26466 Clarkston DR, Bonita Springs, FL 34135
26466 Clarkston DR, Bonita Springs, FL 34135Residential - Villa Attached
1836 Pine Glade CIR, Fort Myers, FL 33907
1836 Pine Glade CIR, Fort Myers, FL 33907Residential - Villa Attached