1714 SW 53rd LN, Cape Coral, FL 33914
- $2,995,000
- $2,995,000
Description
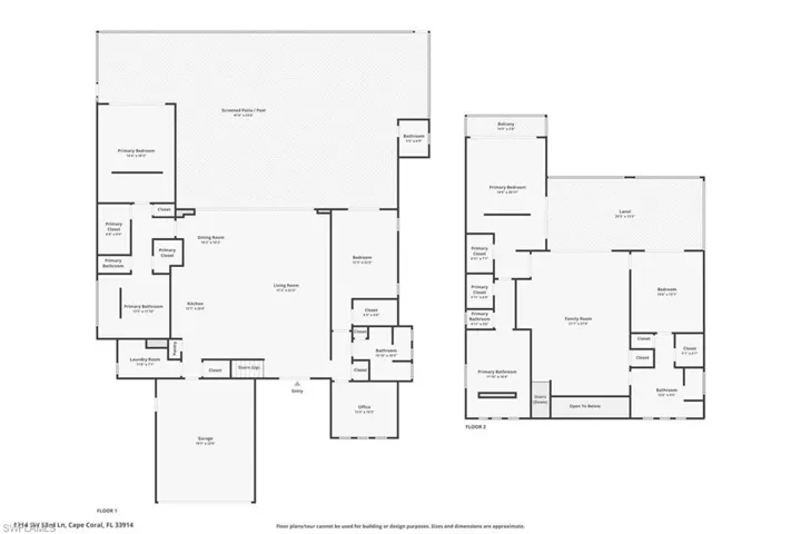
Experience unparalleled luxury in this newly constructed, GULF ACCESS southern exposure home, perfectly situated in the sought-after SW Cape Coral area, just minutes from Cape Harbour and directly across from Camelot Park. This exquisite property boasts over 4,100 sq ft of living area with 4 large bedrooms, 4 1/2 baths plus a spacious den, 3 car garage, and is being sold turnkey with all furnishings. The home is designed for those who appreciate the finer things in life, offering a wealth of high-end features and modern conveniences. Enjoy the convenience of dual master suites, providing flexible living arrangements, with a spacious second bedroom upstairs that comes with a shared ensuite, perfect for family or guests. The home features sophisticated tray ceilings throughout and thoughtfully designed soffit lighting that enhances its exterior appeal. The outdoor living space is a true oasis, boasting a state-of-the-art Pentair control system for the luxurious saltwater pool, a swim-up bar, hot tub, and sundeck. Entertain in style with an outdoor kitchen complete with a separate grill station, a large upper balcony offering stunning views, and a charming tiki hut. Boating enthusiasts will appreciate the new composite dock with a 12k boat lift on the extra-wide canal. Inside, the upper living area includes a wet bar/kitchen equipped with a dishwasher and fridge, along with a large second living room ideal for entertaining. The home also features a pool table, perfect for game nights with family and friends, and a gourmet kitchen with a double oven and spacious pantry catering to all your culinary needs. All windows and doors are impact-resistant, ensuring safety and peace of mind, while a modern flat tile roof adds to the home’s stylish exterior. Additional amenities include a separate pool bath conveniently located for easy access from the pool area, a hot tub, and a sundeck for relaxation and unwinding. This luxury waterfront home combines elegance, comfort, and functionality, making it a perfect choice for those seeking an upscale lifestyle in SW Cape Coral. Don’t miss the opportunity to own this extraordinary property.
Details
Updated on August 2, 2024 at 2:35 pm-
Property ID 224050471
-
Price $2,995,000
-
Property Size 6497 Sqft
-
Land Area 0.25 Acres
-
Bedrooms 4
-
Bathrooms 5
-
Garages 3
-
Garage Size x x
-
Year Built 2023
-
Property Type 2 Story,Single Family Residence, Residential
Additional details
-
Roof Tile
-
Cooling Ceiling Fan(s),Central Electric
-
Heating Central Electric
-
Flooring Marble,Tile
-
County Lee
-
Property Type Residential
-
Pool Below Ground,Concrete,Custom Upgrades,Equipment Stays,Electric Heat,Pool Bath,Salt Water,Screen Enclosure
-
Parking Driveway Paved,Paved,On Street,Attached
-
Elementary School SCHOOL OF CHOICE
-
Middle School SCHOOL OF CHOICE
-
High School SCHOOL OF CHOICE
-
Community Features Tennis Court(s)
-
Waterfront Canal Front,Navigable,Seawall
-
Architectural Style Two Story,Single Family
Mortgage Calculator
-
Down Payment
-
Loan Amount
-
Monthly Mortgage Payment
-
Property Tax
-
Home Insurance
-
PMI
-
Monthly HOA Fees
Similar Listings
1021 Sand Castle RD, Sanibel, FL 33957
1021 Sand Castle RD, Sanibel, FL 33957Residential - 2 Story,Single Family Residence
19883 Bristol RD, Fort Myers, FL 33908
19883 Bristol RD, Fort Myers, FL 33908Residential - 2 Story,Single Family Residence