17141 Carolyn LN, North Fort Myers, FL 33917
- $275,000
- $275,000
Description
Looking for more outdoor space to enjoy? This is a rare opportunity to own a well maintained home situated on just over ½ acre of land. Lovingly cared for by its original owner and builder since completion, this property offers both quality construction and thoughtful updates throughout.
Recent improvements include new luxury vinyl plank (LVP) flooring throughout, a new GE appliance package, fresh interior paint, and a roof replacement in 2022. The kitchen features a new ceiling fan and chandelier, and the home also features a newer A/C system for added comfort.
Enjoy the freedom of no deed restrictions and no HOA fees. The property also includes a 252-square-foot detached workshop, offering endless possibilities—whether you envision a workshop, home office, hobby space, or private retreat.
With plenty of room for a boat, RV, and other recreational vehicles, as well as space to add a generously sized pool, this property provides the flexibility and outdoor space that is increasingly hard to find.
Don’t miss your chance to experience the space, privacy, and potential this unique property has to offer —schedule your showing today.
Details
Updated on April 14, 2026 at 1:01 pm-
Property ID 2026012597
-
Price $275,000
-
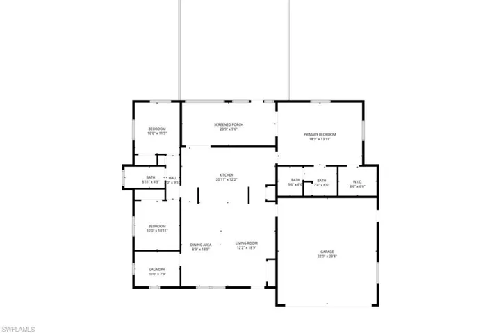
Property Size 2130 Sqft
-
Land Area 0.516 Acres
-
Bedrooms 3
-
Bathrooms 2
-
Garages 2
-
Garage Size x x
-
Year Built 1994
-
Property Type Single Family Residence, Residential
Additional details
-
Roof Shingle
-
Sewer Septic Tank
-
Cooling Ceiling Fan(s),Central Electric
-
Heating Central Electric
-
Flooring Vinyl
-
County Lee
-
Property Type Residential
-
Parking Attached
-
Waterfront None
-
Architectural Style Ranch,Single Family
Mortgage Calculator
-
Down Payment
-
Loan Amount
-
Monthly Mortgage Payment
-
Property Tax
-
Home Insurance
-
PMI
-
Monthly HOA Fees
Similar Listings
3303 SW 12th AVE, Cape Coral, FL 33914
3303 SW 12th AVE, Cape Coral, FL 33914Residential - Single Family Residence
387 Viceroy TER, Port Charlotte, FL 33954
387 Viceroy TER, Port Charlotte, FL 33954Residential - Single Family Residence