430 SW 47th TER, Cape Coral, FL 33914
- $9,950,000
Description
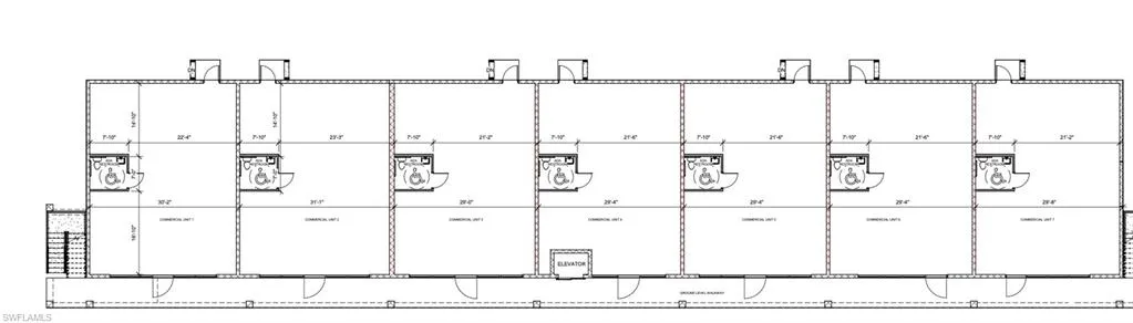
Prime development opportunity in South Cape Coral! This entitled land parcel is offered with approved plans for a mixed-use project featuring 39 workforce housing apartments and 8300 sq ft of commercial space. The site is zoned CP (confirm with zoning for intended use), offering an ideal live-work scenario for residents. Situated in a rapidly growing area, the property provides excellent access to public transportation, major roadways, schools, parks, dining options, and healthcare facilities. High rental demand and flexible use make this a standout investment opportunity, offering stable income potential through long-term residential and commercial leases. The property is deed-restricted under Florida’s Live Local Bill, requiring 40% of units to be leased to individuals earning no more than 120% of the Area Median Income (AMI), which is $88,800 as of April 2024. Whether you’re a developer or investor seeking to contribute to Cape Coral’s workforce housing solutions while capturing long-term value, this property is ready for action.
Buyers have options:
1) Acquire the entitled lot (3.5M) and building plans to build under their own contractor and financing.
2) Use Curran Young and the current construction estimate we have. $250/sf = 18.5M
3) Join us, if you are an accredited investor, through our fund.
Pre-construction pricing is subject to change. Specifications, features, and availability may be modified prior to contract. Property is currently undeveloped and not subject to any lease or rental agreements. Buyer is responsible for securing any future tenants or rental arrangements.
Details
Updated on April 7, 2026 at 2:25 pm-
Property ID 2025015434
-
Price $9,950,000
-
Property Size 42904 Sqft
-
Land Area 0.688 Acres
-
Garage Size x x
-
Year Built 2026
-
Property Status Active
Additional details
-
County Lee
-
Property Type Commercial Sale
-
Waterfront None
Mortgage Calculator
-
Down Payment
-
Loan Amount
-
Monthly Mortgage Payment
-
Property Tax
-
Home Insurance
-
PMI
-
Monthly HOA Fees